Hebe-Schiebetüren (HS) - Wittmann Fenster Türen

Direkt zum Seiteninhalt

Hauptmenü:

Türen > Balkontüren
Hebe-Schiebetüren (HS)

Dieses System kann man sowohl in modernen, als auch in alten Gebäuden verwenden. Mit der Hebeschiebetür können Sie elegante und komfortable Terrassenfassaden errichten. Gleichzeitig ermöglicht Ihnen die große Verglasung eine reibungslose Haus-Garten Kombination. Auch in älteren Häusern kann man bei geringem technischem und finanziellem Aufwand eine Modernisierung durchführen, um den Wohnkomfort deutlich zu erhöhen. Der Vorteil des von uns angebotenen Systems ist die Möglichkeit, mit der Flügelstruktur eine große Fläche mit einer Breite von 3000 mm und einer Höhe von 2700 mm zu schaffen. Die in Balkontüren benutzten HS-Beschläge ermöglichen es uns die Flügel in eine Ebene zu platzieren, ohne die Notwendigkeit das Türelement nach außen zu verschieben.

Konstruktion:
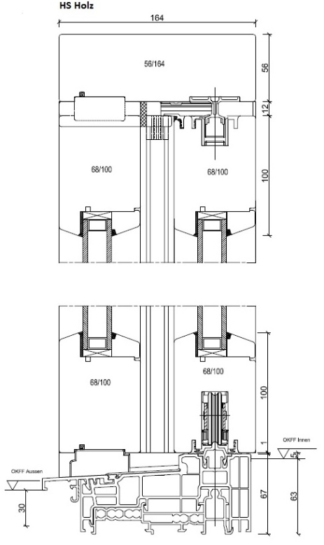
Profil Standard, Standard Plus, Softline, Softline Plus, Retro, Retro Plus
Einrahmenkonstruktion aus dreischichtig längs verleimtem Kantholz.
Rahmendicke 68 mm.
Profil: 56 x 164

Maximale Flügelbreite: 3000 mm.
Maximale Flügelhöhe: 2700 mm.
Material: Kiefer-, Meranti oder Eichenholz Verglasung:
Standardausführung:
Scheibenaufbau- zweischeibig - 4/16Ar/4
Wärmedämmung – Neutralux Argon Ug = 1.1 W/m2k
Scheibenzwischenraum mit Edelgas – Argon gefüllt..

Es besteht die Möglichkeit den Wärmedurchgangskoeffizient von 0,7 W/m2k zu erreichen.
Mit der Möglichkeit einen beliebigen Scheibenaufbau zu verwenden, von einer maximalen Glasverbundsdicke bis 40 mm

In der Standardausführung: Abstandhalter.
Wahlweise: „warme Kante” der Firma Glaspol oder ODER-GLAS in einem zu der Fensterfarbe angepassten Farbton
Beschläge:
AGB-Beschläge.
maximales Flügelgewicht 350 kg.
maximale Flügelbreite 3000 mm
Öffnungsart: Schiebe-System HS Farbe:
Deckende RAL-Farbe oder Lasuranstrich nach dem Standardtransparentfarbenkatalog.
Die gleiche Farbe der inneren und äußeren Fensterteile in der Standardausführung.
Wahlweise: Zweifarbenkombination

Vier-Beschichtungs-System: Imprägnierung und dreifacher Anstrich.
Garantie: 7 Jahre



 
Copyright 2015. All rights reserved.
Zurück zum Seiteninhalt | Zurück zum Hauptmenü